Price £925,000 Available
  • GUIDE PRICE £900,000 - £950,000
  • FOUR BEDROOM FAMILY HOME
  • REFURBISHED TO AN EXCELLENT STANDARD
  • ARRANGED OVER THREE FLOORS
  • GREAT CENTRAL LOCATION
  • SUPERB KITCHEN/ENTERTAINING SPACE
  • OFFICE/SYUDY IN REAR GARDEN
  • CLOSE TO FRANCIS ROAD
  • OFFERED CHAIN FREE
  • VIEWING IS HIGHLY RECOMMENDED

** GUIDE PRICE £900,000 - £950,000 ** ALLEN DAVIES are DELIGHTED to offer FOR SALE this REFURBISHED FOUR BEDROOM FAMILY HOME, located in a QUIET RESIDENTIAL TURNING off LEYTON HIGH ROAD and a few minutes walk to FRANCIS ROAD. The property has been refurbished TO AN EXCLLENT STANDARD and is arranged over THREE FLOORS. The GROUND FLOOR offers a SPACIOUS THROUGH LOUNGE, SUPERB KITCHEN/LIVING SPACE and a GROUNG FLOOR WC. The FIRST FLOOR has THREE BEDROOMS and a FAMILY BATHROOM, there are stairs then leading to the LOFT, which offers a further BEDROOM with EN-SUITE. The property also benefits from a OFFICE/STUDY in the REAR GARDEN and has the added bonus of being offered CHAIN FREE. Locally, being on the cusp of FRANCIS ROAD has it's advantages, not just being in the PERFECT POSITION for local activities, you are close to FANTASTIC TRANSPORT LINKS, with the CENTRAL LINE and LEYTON MIDLAND STATION, within easy walking distance, PARENTS will also be pleased as you have AMAZING SCHOOLS on your door step. On and around FRANCIS ROAD, you have some GREAT PUBS and RESTAURANTS, our favourites are HEATHCOTE & STAR, MARMELLO, FIGO, FILLY BROOK, DEENEYS, BURNT and THE NORTCOTE, to mention a few. Further afield there are also various options in LEYTONSTONE and WALTHAMSTOW. If your looking for GREEN SPACES, HOLLOW PONDS or HACKNEY MARSHES are a short walk away, you also have easy access to THE OLYMPIC PARK, which boasts great LEISURE FACILITIES or a vast area for a BIKE RIDE or dog walk. This one has MASSIVE KERB APPEAL and is a REAL GEM, so it won't hang around for long, if you would like an appointment kindly call the office on 0208 539 2121.



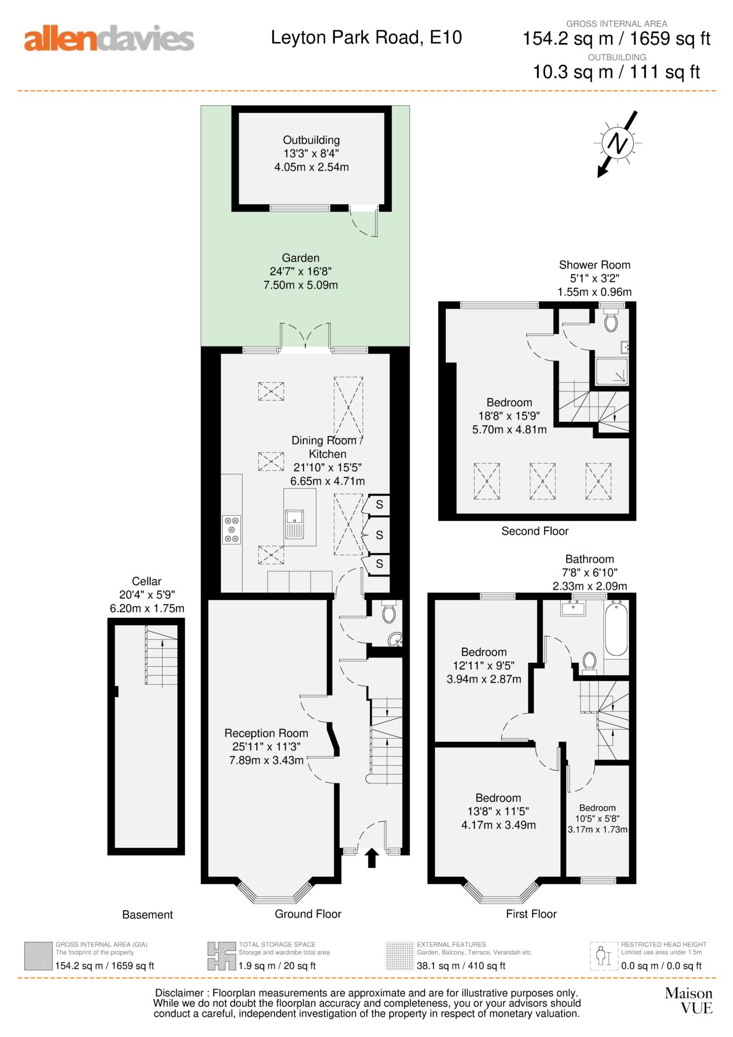
THROUGH LOUNGE - 25'11" (7.9m) x 11'3" (3.43m)

GROUND FLOOR WC

KITCHEN/ENTERTAINING SPACE - 21'10" (6.65m) x 15'5" (4.7m)

BEDROOM 1 - 13'8" (4.17m) x 11'5" (3.48m)

BEDROOM 2 - 12'11" (3.94m) x 9'5" (2.87m)

FIRST FLOOR BATHROOM - 7'8" (2.34m) x 6'10" (2.08m)

BEDROOM 3 - 10'5" (3.18m) x 5'8" (1.73m)

BEDROOM 4 - 18'8" (5.69m) x 15'9" (4.8m)

EN-SUITE BEDROOM 4 - 5'1" (1.55m) x 3'2" (0.97m)

GARDEN

OUTHOUSE/OFFICE - 13'3" (4.04m) x 8'4" (2.54m)



Council Tax
London Borough Of Waltham Forest, Band C

Notice
Please note we have not tested any apparatus, fixtures, fittings, or services. Interested parties must undertake their own investigation into the working order of these items. All measurements are approximate and photographs provided for guidance only.

Floor Plan
EER Chart

The Energy-Efficiency Rating is a measure of a home's overall efficiency. The higher the rating, the more energy-efficient the home is, and the lower the fuel bills are likely to be.

Utility Supply Type
Electric Unknown
Gas Unknown
Water Unknown
Sewerage Unknown
Broadband Unknown
Telephone Unknown

Other Items Description
Heating Not Specified
Garden/Outside Space No
Parking No
Garage No

Broadband Coverage Highest Available Download Speed Highest Available Upload Speed
Standard 17 Mbps 1 Mbps
Superfast 80 Mbps 20 Mbps
Ultrafast 1000 Mbps 1000 Mbps

Mobile Coverage Indoor Voice Indoor Data Outdoor Voice Outdoor Data
EE Likely Likely Enhanced Enhanced
Three Likely Likely Enhanced Enhanced
O2 Enhanced Likely Enhanced Enhanced
Vodafone Enhanced Enhanced Enhanced Enhanced

Broadband and Mobile coverage information supplied by Ofcom.


marker icon