Guide Price £725,000 Available
  • GUIDE PRICE £725,000 - £750,000
  • FIVE BEDROOM FAMILY HOME
  • GREAT CENTRAL LOCATION
  • SCOPE FOR FURTHER IMPROVEMENT
  • OVER ?????? SQ FT
  • ARRANGED OVER THREE FLOORS
  • OFFERED CHAIN FREE
  • VIEWING IS HIGHLY ADVISED

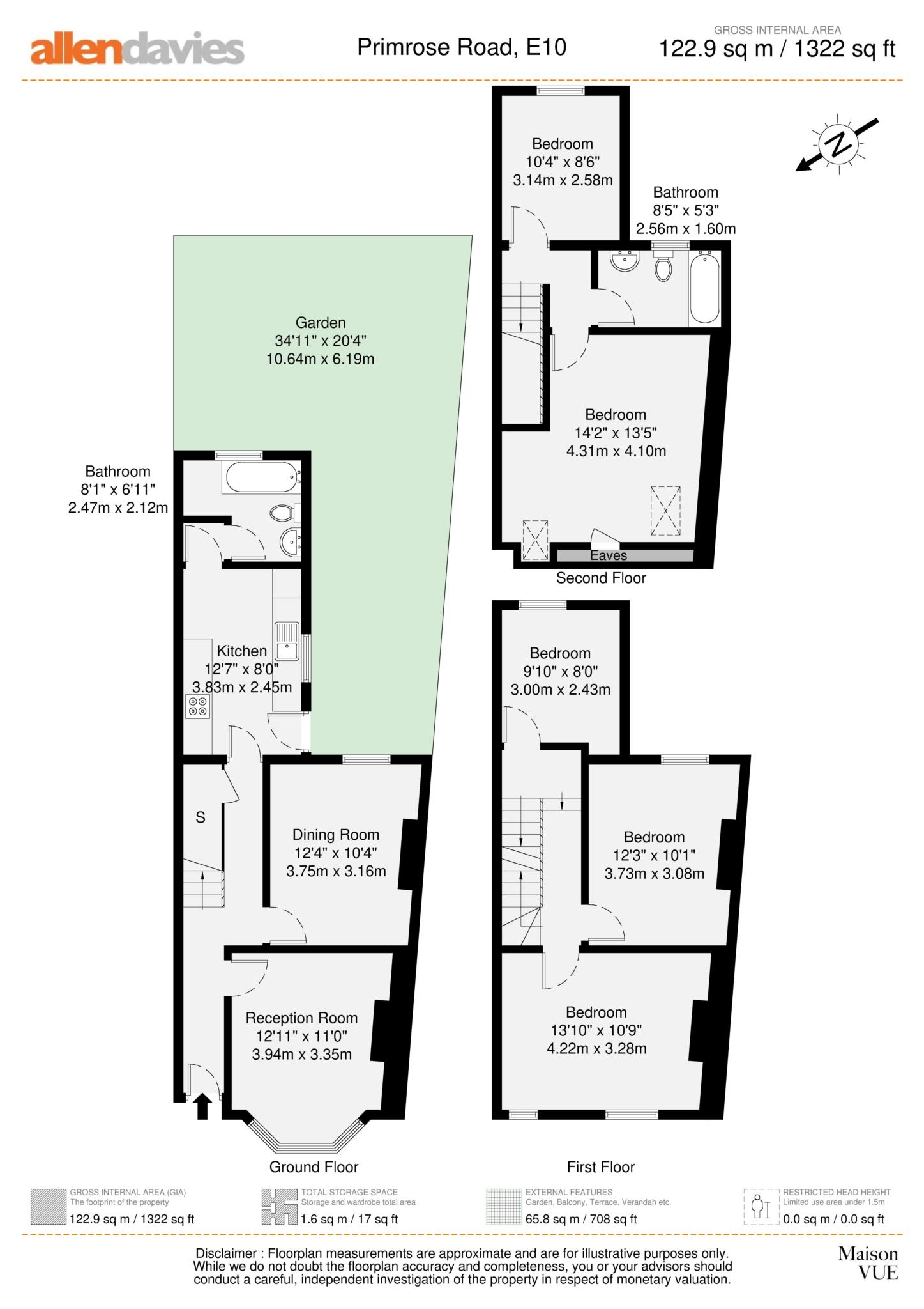
** GUIDE PRICE £725,00 - £750,000 ** ALLEN DAVIES are DELIGHTED to offer FOR SALE this DETACHED FAMILY HOME, located between VICARAGE and GRANGE PARK ROADS, and a few minutes walk to LEYTON HIGH ROAD and FRANCIS ROAD. On the GROUND FLOOR we have, TWO RECEPTION ROOMS, KITCHEN and a BATHROOM. The FIRST FLOOR has THREE DOUBLE BEDROOMS, with a staircase leading to the LOFT, which offers a further TWO BEDROOMS and a SHOWER ROOM. The property also benefits from BEING OFFERED CHAIN FREE, a GOOD SIZED GARDEN PLOT and is DETACHED, which is quite rare in LEYTON. With regards to TRANSPORT LINKS, you have LEYTON MIDLAND STATION and LEYTON UNDERGROUND within walking distance. PARENTS will be pleased, as there are a good selection of PRIMARY and SECONDARY SCHOOLS on your doorstep. You have THE JUBILEE PARK and HACKNEY MARSHES nearby, great for the KIDS or WALKING THE DOG. EATING OUT, again there are plenty of options. FRANCIS ROAD and LEYTON HIGH ROAD offer a vast selection of RESTAURANTS and PUBS, our favourites are MARMELLO, BURNT, DEENEYS, FIGO and THE COACH & HORSES. So all in all, a FANTASTIC FAMILY HOME, in a GREAT location with all the local amenities accessible, so for an appointment to view, please contact ALLEN DAVIES on 0208 539 2121.



RECEPTION 1 - 12'11" (3.94m) x 11'0" (3.35m)

RECEPTION 2 - 12'4" (3.76m) x 10'4" (3.15m)

KITCHEN/DINER - 12'7" (3.84m) x 8'0" (2.44m)

GROUND FLOOR BATHROOM - 8'1" (2.46m) x 6'11" (2.11m)

BEDROOM 1 - 13'10" (4.22m) x 10'9" (3.28m)

BEDROOM 2 - 12'3" (3.73m) x 10'1" (3.07m)

BEDROOM 3 - 9'10" (3m) x 8'0" (2.44m)

BEDROOM 4 - 14'2" (4.32m) x 13'5" (4.09m)

SECOND FLOOR BATHROOM - 8'5" (2.57m) x 5'3" (1.6m)

BEDROOM 5 - 10'4" (3.15m) x 8'6" (2.59m)

GARDEN



Council Tax
London Borough Of Waltham Forest, Band C

Notice
Please note we have not tested any apparatus, fixtures, fittings, or services. Interested parties must undertake their own investigation into the working order of these items. All measurements are approximate and photographs provided for guidance only.

Floor Plan
EER Chart

The Energy-Efficiency Rating is a measure of a home's overall efficiency. The higher the rating, the more energy-efficient the home is, and the lower the fuel bills are likely to be.

Utility Supply Type
Electric Unknown
Gas Unknown
Water Unknown
Sewerage Unknown
Broadband Unknown
Telephone Unknown

Other Items Description
Heating Not Specified
Garden/Outside Space No
Parking No
Garage No

Broadband Coverage Highest Available Download Speed Highest Available Upload Speed
Standard 17 Mbps 1 Mbps
Superfast 80 Mbps 20 Mbps
Ultrafast 5000 Mbps 5000 Mbps

Mobile Coverage Indoor Voice Indoor Data Outdoor Voice Outdoor Data
EE Likely Likely Enhanced Enhanced
Three Enhanced Enhanced Enhanced Enhanced
O2 Enhanced Enhanced Enhanced Enhanced
Vodafone Likely Likely Enhanced Enhanced

Broadband and Mobile coverage information supplied by Ofcom.


marker icon